
这套128平米的中式,以实用又接地气的中式风装修;以简单的装修基础,搭配实木的中式家具,没有太明显的风格限制,以实用、省钱为主导;这是多数中国家庭所喜欢的装修氛围,很接地气!
图·赏 picture玄关
玄关的酒柜+鞋柜结合的收纳柜,既可以收纳鞋子又可以作为展示柜,实用又美观大方;

走廊的墙面都贴上了碧玉般温润精致的瓷砖,效果很是温馨舒适;

客厅
中式的沙发茶几与电视柜,结合现代大方的硬装基础,整个空间给人的感觉都是现代舒适又有中式韵味;

瓷砖贴满了公共区域的墙面,包括电视墙的整面都是瓷砖,这种简洁温润的感觉,就像是一块碧玉般的干净舒适;

空间内加入了不少的绿植点缀,显得清新又舒适;




电视墙侧边的神台,红木色的色调与电视柜搭配和谐又美观;

小孩玩耍的篮球架、地上的足球,充满了接地气的气息;而采用墙纸普通的墙面,美观又耐脏,不怕小孩子乱涂乱画了;

这些都是临时现拍的,没有刻意的摆拍,客厅都还没收拾好,略乱各位且看且珍惜;

餐厅
客餐厅处于一个开放的横厅格局,餐厅背景墙挂着一股横幅字画,让空间显得更加有中式文韵的感觉;

厨房
实用整洁的现代化厨房,U型的格局面积不大却也实用大方;

操作台的面积正好够用,红色橱柜面板显得耐脏时尚又大方;

卧室
卧室简单又实用美观,入住后的氛围充满了生活的气息,很应景接地气;

儿童房
儿童房的装修以简单实用为主,没有任何复杂的造型,仅以天花板的石膏线装饰了一下,显得简单又实用;

墙面挂着一幅字画让小孩从小就培养出高尚的情操,不过这个窗帘选择小编觉得不是很搭配;颜色深了点;

硬装方面的中式硬朗,以活力鲜艳的床单点亮了空间的年轻舒适感;

书房
书房也挂着一幅中式字画,让简简单单的墙面造型看起来也文墨又韵味;

卫生间
以中性色的瓷砖的卫生间,显得更加耐看又耐脏;

不过像这样的干湿分离的布置,小编个人觉得不可取;每次洗澡后马桶湿漉漉的根本不能用,所谓卫生间面积小的朋友们,要考虑清楚了再把马桶布置到淋浴房里!

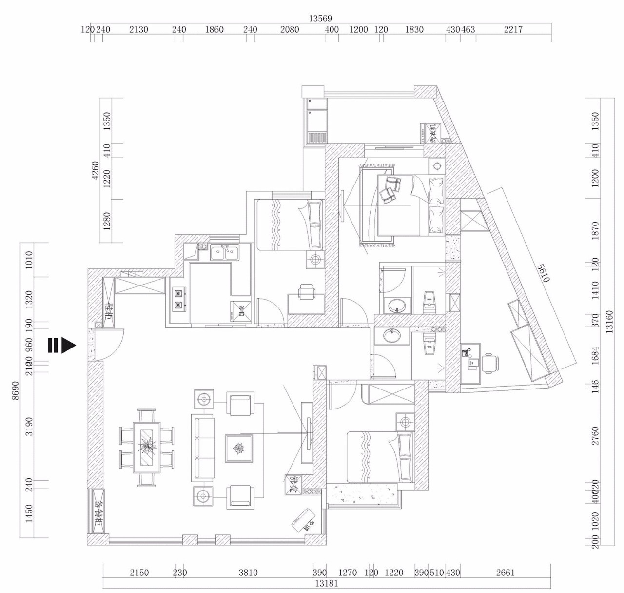
平面图

设计丨善饰装饰
欢迎设计师、业主、装修公司投稿
合作联系QQ:1660544525
相关案例








