供稿:小隐建筑事务所
本文已获得授权
西藏·然乌湖国际自驾与房车营地
Tibet, RanWu lake international self-driving and RV camp
每个向往西藏的孩子,
都有一个G318之梦,
而紧邻中国最美公路的藏东第一大湖“然乌湖”,
便是镶嵌在318国道上的一颗耀眼明珠!

幽蓝深遂的然乌湖水恍若天空滑下的一滴眼泪,寂静得没有丝毫声息,犹如被久远时光凝固的女子,心头再也泛不起涟漪。她不食人间烟火,依然保留了世界难觅的原始美,传说中的高原梦境。

晨曦初晓

日光弥漫

冰雪圣洁

日落金山

天堂有泪化作然乌水,
然乌无言静候何人归。


营地位于然乌湖拉热村,北侧318国道蜿蜒而过,南侧然乌湖如梦幻之境,是自驾旅行者观赏然乌湖美景的最佳停驻点。营地地形北高南低,最大高差约13米,地势相对平缓、开阔,景观视野绝佳。湖边绿草茵茵、古树婆娑,山腰青松摇曳、杜鹃烂漫,山顶皎洁莹蓝、云浮玉色。

营地集旅游资讯中心、服务管理中心、简餐、中餐、咖啡、24h便利店、藏药文化展览馆、藏地特产展销中心、高端度假酒店、休闲酒吧、休闲茶吧、BBQ自助烧烤、医疗救助中心、星级卫浴设施、车辆维修、帐篷露营、房车露营、儿童森林乐园、观景平台、亲水平台等综合旅游项目于一体。

总占地面积约70亩,一期工程建筑使用面积为2400平米,由综合服务中心、9栋高端度假酒店、休闲酒吧、休闲茶吧、藏地特产展销中心、BBQ自助烧烤、医疗救助中心、星级卫浴设施、露营帐篷、176个小汽车停车位、5个旅游大巴停车位、7个房车停车位等组成。

营地地势整体均低于北侧318国道,且北侧高地山体有一排水冲沟流经营地区域,所有建筑采用底部架空处理,从北到南,地势从高到低依次布置停车场、汽车维修、洗车场、景观广场、旅游服务中心、度假酒店、帐篷露营、观景平台、休闲酒吧。

利用原有地形的高差,结合建筑架空层的高度调节,保证从湖边到318国道的各建筑依次抬高、互不遮挡,通过架空层高度调节,使得旅游服务中心主体建筑整体高于318国道6-8米,并在临318国道入口处设置约20米高的景观灯塔,从而保证项目安全性、昭示性和景观资源的最大化利用。

为最大化观湖视野,综合服务中心主体建筑沿318国道横向折线延展约80米,建筑底层架空约8米,临湖一侧为全落地玻璃,保证主体建筑临湖一侧绝佳观景视野。主体建筑由白色实体不规则线条和大量通透玻璃构建而成,通过平面和竖向的造型变化最终以缓坡坡道重新与地面连接。营地主体建筑外观顺应地形转折起伏似雄鹰展翅栖于湖案。



主体一层为旅游服务资讯中心、管理中心、简餐、咖啡、24H便利店、藏地特产展销中心等景观要求高的功能空间,简餐以面点、快餐、糕点为主,咖啡为现磨咖啡,为游客提供一处休闲放松的观景空间。



端坐在大悬挑的观景阳台上,远处的蓝天、白云、雪山、彩林倒映在蓝绿色的湖面中,耳旁风声、水声潺潺拂过,沐浴着高原的暖阳,嘬一口美味的咖啡或是闻着淡淡的茶香,抑或是把爱人、家人的笑脸烙在旅途的胶片上……


利用主体建筑下部架空层布置景观要求较低的医疗救助及星级卫浴设施、藏药文化展览馆和设备管理用房,为游客提供安全、舒适、优质的辅助服务配套设施。不管是朝圣的徒步信徒,还是玩命的自行车行者,还是狂放的摩托车狂徒,还是猎奇的自驾车游者,这里都有你所想、所需、所乐……



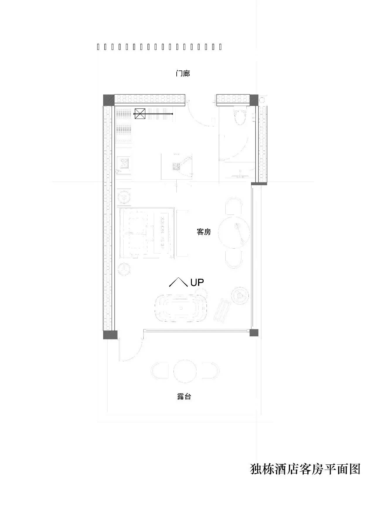
主体建筑前方点缀了8栋独栋式度假酒店,酒店底部架空2-4米,根据视线需求高低错落布置,且控制酒店屋顶高度均低于旅游服务中心一层1.5米以上,保证酒店客房绝佳景观视野和客房相互间私密性的同时,亦可保证旅游服务中心优越的临湖景观视野。酒店客房西侧为当地卵石制作的特色景观墙,临湖东南两侧均为4米高180°超宽落地玻璃窗,躺在床上然乌湖巍峨俊秀的雪山、满天繁星的夜空即可尽收眼底。



独栋酒店前方的室外场地地势较低,在绿树卵石间规划舒适型双层帐篷露营营地,结合湖边的BBQ烧烤及休闲酒吧共成一区。与三五好友喝着青稞酒,吃着各种野味烧烤,伴着漫天的星光,再和当地人一起来个篝火锅庄,渐渐地坠入梦乡……


临湖地势最低的位置设置约400平米的休闲酒吧,酒吧顶部为空中观景平台,景观平台通过景观廊桥与服务中心、酒店、及服务中心北侧小广场直接连接,方便项目内部各功能空间的交通组织。酒吧四面均为4米高全落地窗,室内为大跨度无柱空间,觥筹交错、激情狂欢的画面荡漾在悠然的然乌湖面……


东南角湖案水边点缀1栋套房式独栋酒店,配置独立会客厅、休闲厅、棋牌室、约40平米临湖空中观景露台。房间内任何位置都可将然乌湖美景一览无余。


为更好利用然乌湖的水位变化,套房酒店底部架空约4米,然乌湖枯水期酒店掩于水草丛生,然乌湖丰水期酒店漂于波光之上,游于薄雾之间……“面朝大海,春暖花开”,这是多少人所向往的生活呀!


近年,藏区徒步旅游者和自行车骑行侠越来越多,项目内部设置了一条蜿蜒的自行车骑行道直通湖边酒吧、BBQ烧烤、观景平台、亲水平台和帐篷露营区域,方便自行车骑行游客的参与互动。为最大限度的给藏区自驾游旅客提供优质的旅游服务,项目内人性化的配置了医疗救助站、洗车场、汽车维修、24H热水沐浴间等公共服务设施。




为尽可能降低项目对用地及周围环境的影响,更好地保护项目地“然乌湖景区”的自然环境,结合项目所在地材料物资运输的难度,气候条件对工程建设的影响等诸多因素,整个项目建筑物及构筑物除结构基础采用钢筋混凝土之外,其余部分全部采用装配式钢结构建造。装配式钢结构在环境保护、建设工期、材料运输、抗震效果等方面都有绝对的优势。




项目建筑以藏民族所喜爱和崇尚的白色、红色为主色调,通过白色水泥纤维板、红色耐候钢板、超厚透明玻璃、深灰色钢材、当地木材及当地卵石等材料巧妙搭配,共同营造一个独特、自然、温馨、别致的空间环境。



绿意盎然的春夏,白色的水泥板、深红色的耐候钢、透明的玻璃与郁郁葱葱的绿交相浑映,共筑美景。深秋之际,红色、白色、黄色、绿色勾画出漫山的五彩斑斓。白雪皑皑之时,建筑与白雪融为一体,一片苍茫……






项目信息
项目地址:西藏·然乌湖风景区·然乌镇
总用地面积:46668平方米(约70亩)
总建筑面积:2400平方米(一期)
项目时间:2016年-2017年
设计机构:小隐建筑设计事务所
主持建筑师(总设计师):潘友才
景观&规划设计:杨喆、黎天景
室内设计:何苗、江涛、张宇、秦淼森
建筑摄影:存在建筑-建筑摄影

潘友才
小隐建筑事务所创始人·主持建筑师
2009年毕业于四川大学。









