
来源: 《建筑技艺》杂志(ID:ATJournal )
日本等住宅工业化发展较为先进的国家,已经形成了采用装配式工业化方式进行内装改造的模式。近年来,住宅工业化也是我国大力关注和发展的领域,但是在内装工业化范畴,得到的关注却相对较少,而通过内装工业化的方法对既有住宅进行改造,更是缺乏具体的探讨,无论是统筹和设计,还是产品提供、技术实施方面,均未形成完善的体系,更没有严谨的实测论证。
在这种背景下,通过建造实验样板间的方式,可以进行全过程的摸索和尝试,最为直接地探索和实验我国既有住宅的内装工业化改造方法与模式。在样板间完成以后,通过邀请住户在建成的样板间中进行体验,并进行问卷调查和采访,可以了解居民对于内装工业化的意见和满意度,为建立适合我国国情的既有住宅内装工业化改造体系提供参考。
同济大学周静敏研究室自2014年开始,通过实验样板间进行了装配式内装工业化体系在既有住宅改造中的适用性研究,希望可以通过工业化部品在既有住宅改造中的应用总结经验、摸索方法,从而实现既有住宅的安全、高效、高品质、可持续的更新。
前期准备阶段
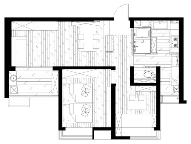
样板间选取了典型、常见的中小户型,其位于上海市某住宅区29层的高层住宅内,建筑面积为90㎡,使用面积为68㎡,原始户型位于楼栋的中间,为两室两厅一厨一卫的布局。
在进行实际的设计和施工之前,为了进一步明确课题内容和掌握现状情况,对样板间所在的楼栋进行了改造方式和过程的追踪调查,以发现问题,同时为样板间提供对比的样本。调查样本选取了与样板间条件相同的同一栋住宅楼、同一个户型共12个住户。经过两个多月的改造过程追踪调查发现,住户自主装修采用的传统改造方式不仅工期长、质量差,产生大量的建筑垃圾;同时对住宅结构造成了不可逆的破坏,产生大量安全隐患,特别是水电改造中将管线埋设到结构体中的方式,破坏了结构,且施工污染严重,同时难以进行后期的维护、维修和改造,是一种极其不可持续的方式。

▲ 样板间在楼栋中的位置和改造前户型
在对国内外调研和研究的基础上,针对发现的需要迫切解决的问题,课题组讨论了通过样板间需要试验和解决的几个方向:
(1)用工业化的方式进行内装,现场尽可能采用干式作业的方式。
(2)采用工业化的部品,尤其是整体厨卫这一类集成部品。探索中小户型中卫浴三分离、可变居室空间等新的布局方式。
(3)尽可能地采用结构体与管线分离的形式,不对主体结构进行损坏,便于在后期进行维修和布局的更换。
(4)在样板间的建设中,考虑我国的现实条件、技术和市场情况,采用现实环境下可以实现的内装工业化方式,同时通过样板间的探索,为未来体系和市场的完善提供参考。
(5)探索新的生活方式,使住宅可以经过改造符合全生命周期的需求,研究老龄化背景下的住宅设计和建造方式。
样板间设计推敲阶段
前期研究、样板间的准备以及对比样本的现场调研前后经历了约一年时间,而与现场调研同时进行的是样板间的设计和推敲。由于我国尚没有将内装工业化技术应用到既有住宅中的先例可供参考,工业化部品的供应市场也并不成熟,又处于既有住宅的种种限制条件之下,样板间设计经历了超出预计的反复,经过三十多稿方案设计才最终确定。即便如此准备,在施工中还是出现了根据现状进行许多调整的情况。
工业化内装设计的特点
既有住宅改造工业化样板间设计与一般的住宅设计的最大不同主要有以下两个方面。
一是部品选型与空间设计的结合。在设计和施工的三年间,课题组成员多次进行住宅部品的考察,如整体厨房、整体卫浴、干式地暖、地脚螺栓架空地板、轻钢龙骨和木龙骨隔墙、新风换气系统、移动拉门和隔墙等方面,对现有的住宅产品市场进行了充分调研。尤其对于体积较大的整体厨卫等集成化部品,需要在设计之初对产品参数和平面布局进行综合考量。
二是设备管线设计的特殊、重要地位。设备管线设计属于住宅中的隐蔽工程,但其作为住宅的“循环系统”直接影响着住宅的布局,关系到住宅的舒适度、检修的方便性及未来的可变性。虽然传统建造方式的住宅设计中也提倡空间设计与设备管线设计的结合,但仍是以空间设计为主导,设备和管线处于配合的、次要的地位。但是在工业化内装设计中,涉及大量部品/部件,现场主要采用装配式作业,所以更加需要对管线设备提前进行细致的设计。如利用轻质隔墙内部集中铺设管线;再如新风系统设计中,需要考虑室外机的位置、管线的布局(包括与其他管线的布置),还涉及到管线的部分吊顶应该如何设计,如何与室内空间、家具布局相结合。

▲ 部分部品调研记录
在既有住宅条件制约下的设计
由于是既有住宅的改造项目,所以设计中难以避免处处受到既有条件的制约,这同时也是课题所要探讨的一个重要方面。总结下来,主要有以下三点。
其一,户内存在承重墙、承重梁等结构构件,对空间的重新划分和部品的安装造成了较大的障碍与局限。
其二,原有的粗放设计和建造方式不符合模数协调规则,与部品设计无法形成呼应。不仅如此,在实际测量中发现,住宅建设误差较大,课题组前后约组织了四次整体测量,而局部的测量更是无法计数,面宽约3m的起居室测量后误差竟然有3cm以上,有些墙体更是不仅在平面上倾斜,在竖向上也有相当的倾斜,为设计和部品的协调造成了巨大的困难。
其三,管道井和烟道的制约。由于原有住宅管道井和烟道位于户内,位置固定,限制了厨卫空间的设置以及管线的布置方式。而穿楼板排水、烟道排烟的方式使住宅的上下层之间形成了干扰。这些都与工业化内装希望达成的居室空间可根据住户需求自由改造的目标相矛盾。

▲ 既有住宅的限制因素
设计中的难点:厨卫空间
用水空间的设计是本次样板间设计中最大的难点。原有住宅中厨房、卫生间的部分空间狭小,存在大量突出物如承重墙、承重梁、管道井,空间极其不规整,这就对整体卫浴的安装极其不利,并且由于用水空间牵涉大量的给排水、电气、供暖等管线,是较为复杂的区域。同时,由于课题目标之一是测试三分离卫浴空间,而原有的户型格局是三合一的形式,这就需要重整布局并设计管线。为确保方案的可实施性,在方案设计期间,课题组数次邀请整体卫浴的专业人员前来考察并参与样板间设计。
最终的水区方案虽然在空间设计上并非最优,但在现有条件下比较好地协调了现状、产品以及考虑了未来的更改和维修。目前水区的施工已经基本完成,等待样板间施工完毕之后的用户体验的检验。

▲ 与整体卫浴专业人员共同设计样板间方案


▲ 部分水区方案举例

▲ 样板间定稿施工方案
样板间的施工阶段
自2016年3月,课题组开始进行正式的样板间施工工作。施工工序大致可以分为现场整理、水电施工、整体卫浴安装、新风等设备系统安装、轻质隔墙和收纳施工、架空地板和地暖施工、整体厨房和洁具安装、活动隔墙和门扇安装等几个大的阶段,并互有穿插。由于是实验性质的施工,工序的相互衔接和配合要经过反复论证,所以工期比一般改造过程要长,尚不能发挥工业化装配施工的优势,但是在实验过程中已经发现工业化施工在质量稳定性和施工效率方面的巨大潜能,如整体卫浴的施工,在现场条件提前准备好的情况下,由两位专业人员历时8h即完成全部组件的安装。

▲ 整体卫浴的装配式安装
其中整体卫浴、架空地板、新风系统、干式地暖、整体厨房、活动隔墙和门扇等工序由各专业厂家的工人进行施工,而水电管线、轻质隔墙和收纳等配合工作,由管理较为专业的装修公司进行施工。
对于装修公司工人的作业,样板间施工采用了一些新的技术,如给水分水器供水和供热水的方式、管线和结构分离及架空地板的方式,无论设计还是施工都与传统方式有所不同。为了保证质量,首先由课题组成员学习、讨论和研究每个工序的施工方法,并事先与装修公司工人进行充分的沟通和必要的培训,正式施工时再由课题组人员现场监工。这样的方式必然会降低效率,但也是缺乏技术工人情况下的无奈选择。
在施工的摸索中,以能够适应中国国情为目的,如分水器安装中,在缺乏必要的工厂定型固定零部件的情况下,与施工工人讨论,利用现场的一些零部件,并采用简单的手工干作业的方式进行代替,也能达到安装的目的。从结果来看,虽然成品不够精致但功能可以照常使用,成本也得到了降低,不失为在有限的条件下进行过渡的一种办法。另外一部分的施工由厂家专业工人的施工作业完成,对于这一部分,工程管理和协调则极为重要。在现场,很多工序是互相配合和交叉完成的,如整体卫浴的安装需要事先接好水电接口;地脚螺栓架空地板需要进行协调,不与管线交叉。为了协调工程进度和保证工程质量,除了充分的沟通外,还需尽量事先进行模拟,从而为接下来的工序创造良好的现场条件。
目前,样板间的施工在持续推进中,从施工流程和工序来说,已经完成放线和水电施工、整体卫浴安装;接下来将逐步进行架空地板、干式地暖、新风系统、吊顶、内隔墙、内门窗、整体厨房、整体收纳等部分的施工,期待在全部施工完成之后由用户进行体验并对结果进行反馈。


▲ 施工过程与课题组成员进行的施工模拟
总结
截至本篇文章的撰写,课题的研究和样板间的推进已经有三年时间,总结起来,对以下几点感触颇深。
首先,对既有住宅采用工业化内装部品改造,需要在既有住宅的结构、管线、户型布局的种种限制之下进行,这也是本次样板间方案推敲中的最大难关,但是事实证明,经过严密的测量和精确的设计,工业化的方式在技术上完全具备可行性。在课题组举行的反思会中,也意识到利用摸索到的经验重新进行样板间设计,将比现在的方案更为优化。
其次,目前我国内装工业化的产业链并不完善,可供选择的厂家和部品较少,熟练的技术工人也比较缺乏,存在着较大的不足。同时,由于未能形成批量生产和供应,所以目前采用工业化内装方式进行既有住宅改造的成本相对较高,尚不能感受到大批量生产带来的降低成本、保证质量的优势。但是,也可以从实验的成果看到技术上的可能性与发展潜力。
再次,既有住宅的工业化内装改造牵涉大量专业知识,而各个专业的整合协调是工业化内装施工中非常重要的,日本等国家的经验是由建筑事务所和开发商进行资源整合,而在我国以怎样的机构为主体进行住宅的批量改造也是值得探讨的问题。
总之,样板间的实验表明,装配式的内装工业化施工在既有住宅改造中可以发挥巨大潜能。同时,这个领域还需要进一步进行体系的建立、经验和策略的总结、产业的完善,需要社会各界的共同努力。
致谢:样板间的整体卫浴由海鸥有巢氏提供,北京维石家居曹祎杰技术支持。百安居(龙阳店)负责改造施工。同时,参与本实验的部品还有北京建和社架空地面系统、能率水暖系统、欧克玛木门、松下新风系统、北新建材基础板、老板油烟机炉灶系统等,在此一并感谢!
周静敏同济大学建筑与城市规划学院教授、博士生导师;住房和城乡建设部建筑设计标准化技术委员会委员;中国建筑学会适老性建筑学术委员会委员;中国工程建设标准化协会养老服务设施专业委员会委员;国家自然科学基金、国家留学基金委员会评审专家;《建筑师》、《住区》、《城市 空间 设计》、《室内设计师》、《住宅科技》等杂志编委。
建筑革新最前沿!在这里了解装配式建筑:
70张PPT带你看懂:装配式建筑与装修一体化集成设计!(内含工程实例)
瑞士人发明了一种真空墙,安装就像挂画那么简单!只需要5分钟......









